91a在线观看-a级欧美-岛国一区-国产乱色精品成人免费视频-黄色免费电影网址-久久精品1

廚房設計知識

饅頭生產線-百科介紹

作者: 奇能設計百科 編輯: 來源: http://www.feixinkehuduan.com.cn/ 發布日期: 2018.09.13
信息摘要:
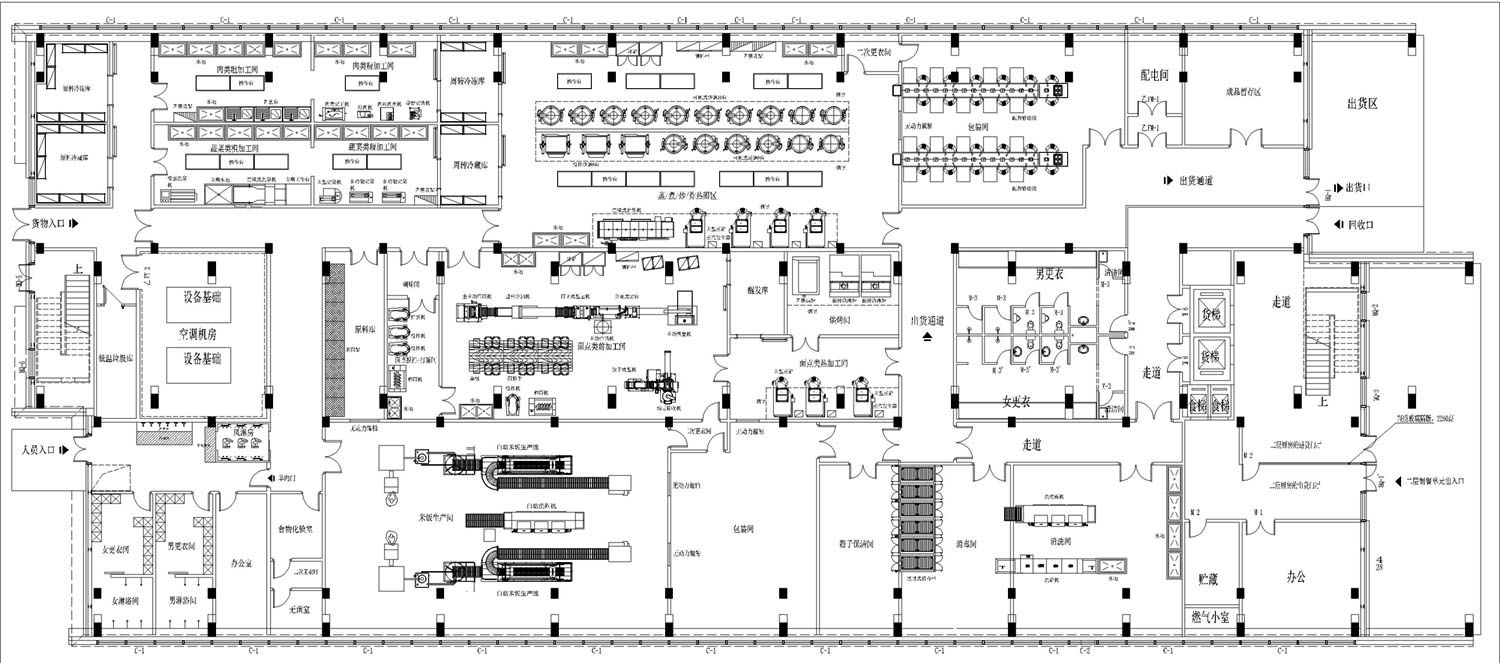
中央廚房生產的饅頭分類,常見有雞蛋饅頭,鮮奶饅頭,燕麥饅頭,蔥油花卷等。首先,從倉庫面粉,輔料等原料收貨后,經過和面,壓面,制皮,手工成型,…
        中央廚房生產的饅頭分類,常見有雞蛋饅頭,鮮奶饅頭,燕麥饅頭,蔥油花卷等。
        首先,從倉庫面粉,輔料等原料收貨后,經過和面,壓面,制皮,手工成型,醒發后,蒸制。
饅頭生產線-奇能設計百科
        其次,若機械成型后的饅頭可以直接醒發,再進行蒸制。
        最后,饅頭蒸制成熟之后,冷卻裝托,稱重,冷卻后包裝,金屬檢測后裝箱入庫。

版權聲明:未經正式版權嚴禁轉載本文,侵權必究、本文出處:http://www.feixinkehuduan.com.cn/

同類百科推薦
大型中央廚房設計圖

大型中央廚房設計圖

像供應團餐、連鎖餐飲的中央廚房都屬于大型中央廚房,大型中央廚房像一個特殊的工廠,是由若干個功能和系統組成的,涉及專業知識相當廣泛,因此對于大型中央廚房設計,需要各專業設計人員互相配合共同承擔和完成設計任務。下面我們通過幾張大型中央廚房的設計圖來深入了解中央廚房設計的關鍵合理的功能分區和流暢動線。
2018-09-13
餐飲中央廚房設計圖

餐飲中央廚房設計圖

餐飲中央廚房的設計可謂是一項難度極高、涉及極廣、專業極強的科學性項目,需要參與設計的單位具備工藝、設備、建筑、結構、動力、技術經濟等相關知識。既要保障中央廚房功能間嚴格分區、通道流暢、不交叉,又要做到保護環境和減輕勞動前度。那下面我們就通過幾張餐飲中央廚房設計圖來詳細了解中央廚房。
2018-09-12
中央廚房應該如何規劃和設計

中央廚房應該如何規劃和設計

中央廚房是通過集中采購,集約生產來實現菜品的優質價廉,能實現企業利潤的最大化,保證商品的品質和衛生標準。中央廚房是餐飲行業的未來,如何能為客戶合理的規劃,科學的設計一套中央廚房設備運行方案呢。下面我們就來具體了解了解。
2018-04-23

咨詢熱線

010-56865672